Ricerca rapida
-
-
CERCA

Dorio
APPARTAMENTO ALL'ASTA A DORIO

Appartamento

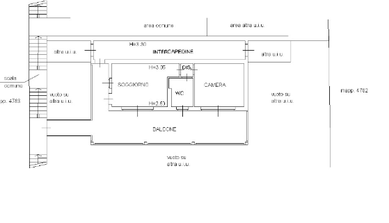
Piena Proprietà. In Comune di DORIO (LC), a parte del fabbricato condominiale in Via degli Alpini n. 9/A, appartamento composto da soggiorno con angolo cottura, camera, bagno, disimpegno, intercapedine (utilizzata come lavanderia e cabina armadio), balcone e passerella di accesso al piano primo; oltre a posto auto scoperto al piano terra.

Data di vendita:11/02/2026


IMMOBILI IN ASTA con ASTE AFFARI CASE
Prezzo: RIBASSATO
Visita: GRATUITA e senza impegno
🔹 La nostra consulenza è completamente GRATUITA!
Lo Studio ASTE AFFARI CASE ti segue passo dopo passo in ogni fase dell’acquisto di un immobile all’asta, senza alcun costo o vincolo iniziale.
Siamo al tuo fianco a 360°, offrendoti assistenza completa e personalizzata.

I NOSTRI SERVIZI:

✅ Assistenza mutuo fino al 100%
✅ Ricerca aste in linea con le tue esigenze
✅ Informativa preliminare dettagliata su ogni immobile
✅ Accompagnamento alla visita gratuita e senza impegno
✅ Consulenza tecnica, legale e notarile
✅ Analisi giuridica e tecnica (perizie, ordinanze, avvisi di vendita)
✅ Accertamenti catastali e ipotecari
✅ Interfaccia diretta con enti e amministratori competenti
✅ Redazione e deposito della domanda di partecipazione
✅ Assistenza durante l’asta telematica
✅ Analisi completa dei costi e compilazione modelli F24
✅ Supporto per decreto di trasferimento e saldo prezzo
✅ Assistenza per eventuale sgombero e consegna immobile
✅ Ristrutturazioni con imprese convenzionate a prezzi agevolati
✅ Accordi stragiudiziali, saldi e stralci

Caratteristiche

Codice
V008483
Prezzo
83.325,00 EUR
Mq
66
Classe
NC
Locali
2
Camere
1
Bagni
1
Posti auto
1
Stato Immobile
Buono
Grado
Medio
Panorama
Vista Aperta
Totale Piani
Quattro
Lati Liberi
2
Giardino
No
Tipo Soggiorno
Soggiorno
Tipo Cucina
Abitabile
Riscaldamento
Autonomo
Tipo Impianto
Pavimento
Fonte Energetica
Gas
Acqua Calda
Centralizzata
Serramenti
Buono
Accessori
Lavanderia, Porta Blindata, Ripostiglio

MAPPA

Via degli Alpini 9, Dorio (LC)
Cookie preference