Ricerca rapida
-
-
CERCA

Turate
APPARTAMENTO IN VILLETTA ALL' ASTA A TURATE

Appartamento

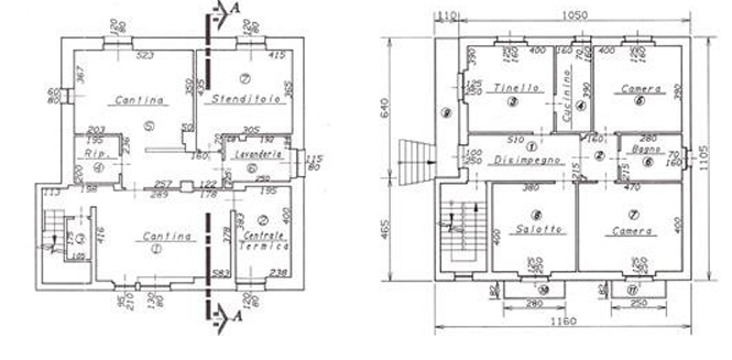
Il corpo A comprende:- piano seminterrato autorizzato e accatastato come cantina, ma attualmente utilizzato come
abitazione, accessibile sia dall’area esterna che dal vano scala interno che collega i vari piani e
attualmente composto da un grande ambiente, suddiviso a vista in soggiorno e cucina, da una camera,
un ripostiglio, un bagno e una centrale termica;- piano rialzato, accessibile da una scala esterna che sbarca su un balcone e dalla scala interna,
composto da disimpegno d’ingresso, tinello con cucinino, salotto, disimpegno notte due camere e un
bagno. I beni sono ubicati in zona periferica in un'area residenziale. Il traffico nella zona è locale, i parcheggi
sono buoni. Sono inoltre presenti i servizi di urbanizzazione primaria e secondaria. BOX DOPPIO MQ 35

Data asta: 04/03/2026

I NOSTRI SERVIZI:

✅ Assistenza mutuo fino al 100%
✅ Ricerca aste in linea con le tue esigenze
✅ Informativa preliminare dettagliata su ogni immobile
✅ Accompagnamento alla visita gratuita e senza impegno
✅ Consulenza tecnica, legale e notarile
✅ Analisi giuridica e tecnica (perizie, ordinanze, avvisi di vendita)
✅ Accertamenti catastali e ipotecari
✅ Interfaccia diretta con enti e amministratori competenti
✅ Redazione e deposito della domanda di partecipazione
✅ Assistenza durante l’asta telematica
✅ Analisi completa dei costi e compilazione modelli F24
✅ Supporto per decreto di trasferimento e saldo prezzo
✅ Assistenza per eventuale sgombero e consegna immobile
✅ Ristrutturazioni con imprese convenzionate a prezzi agevolati
✅ Accordi stragiudiziali, saldi e stralci

Caratteristiche

Codice
V008878
Prezzo
81.000,00 EUR
Mq
16680
Classe
NC
Locali
4
Camere
3
Bagni
2
Box
1
Mq Box
35
Mq Balcone
3,3
Stato Immobile
Buono
Grado
Medio
Panorama
Vista Aperta
Totale Piani
Due
Lati Liberi
4
Giardino
Comune
Tipo Soggiorno
Soggiorno
Tipo Cucina
Angolo Cottura
Riscaldamento
Autonomo
Tipo Impianto
Pavimento
Fonte Energetica
Gas
Acqua Calda
Centralizzata
Serramenti
Buono
Accessori
Porta Blindata, Ripostiglio

MAPPA

Via Vincenzo Bellini 25, Turate (CO)
Cookie preference