Ricerca rapida
-
-
CERCA

Martinengo
APPARTAMENTO ALL'ASTA A MARTINENGO

Appartamento

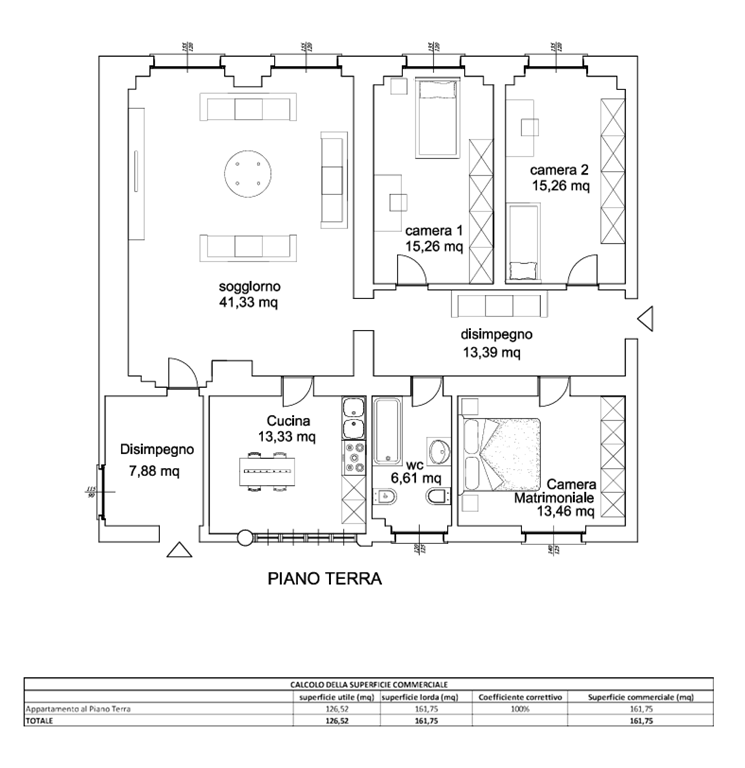
164MQ. Si sviluppa su tre livelli, ovvero un piano terra ove c’è il portone con il corridoio di accesso, un primo piano con un solo vano
ed un bagno ed un secondo piano strutturato in due camere da letto, un soggiorno, una cucina, una cabina
armadio (ripostiglio), una lavanderia (cucina) ed un vano bagno.

Data asta
04/03/2026

I NOSTRI SERVIZI:

✅ Assistenza mutuo fino al 100%
✅ Ricerca aste in linea con le tue esigenze
✅ Informativa preliminare dettagliata su ogni immobile
✅ Accompagnamento alla visita gratuita e senza impegno
✅ Consulenza tecnica, legale e notarile
✅ Analisi giuridica e tecnica (perizie, ordinanze, avvisi di vendita)
✅ Accertamenti catastali e ipotecari
✅ Interfaccia diretta con enti e amministratori competenti
✅ Redazione e deposito della domanda di partecipazione
✅ Assistenza durante l’asta telematica
✅ Analisi completa dei costi e compilazione modelli F24
✅ Supporto per decreto di trasferimento e saldo prezzo
✅ Assistenza per eventuale sgombero e consegna immobile
✅ Ristrutturazioni con imprese convenzionate a prezzi agevolati
✅ Accordi stragiudiziali, saldi e stralci

Caratteristiche

Codice
V008887
Prezzo
93.315,00 EUR
Mq
164
Classe
NC
Locali
4
Camere
3
Bagni
2
Mq Balcone
7
Stato Immobile
Buono
Grado
Medio
Panorama
Vista Aperta
Totale Piani
Tre
Lati Liberi
3
Giardino
No
Tipo Soggiorno
Soggiorno
Tipo Cucina
Abitabile
Riscaldamento
Autonomo
Tipo Impianto
Pavimento
Fonte Energetica
Gas
Acqua Calda
Centralizzata
Serramenti
Buono
Accessori
Lavanderia, Porta Blindata, Ripostiglio

MAPPA

Via f. balicco 7, Martinengo (BG)
Cookie preference